Carolina 190 New

Romantiskt och rustikt med vita ytor. Carolina-hemmen andas lantlig romantik redan vid ytterdörren. De dekorativa detaljerna och stora terrasserna är en väsentlig del av charmen med Carolina.

Välj eller skräddarsy din egen Carolina!

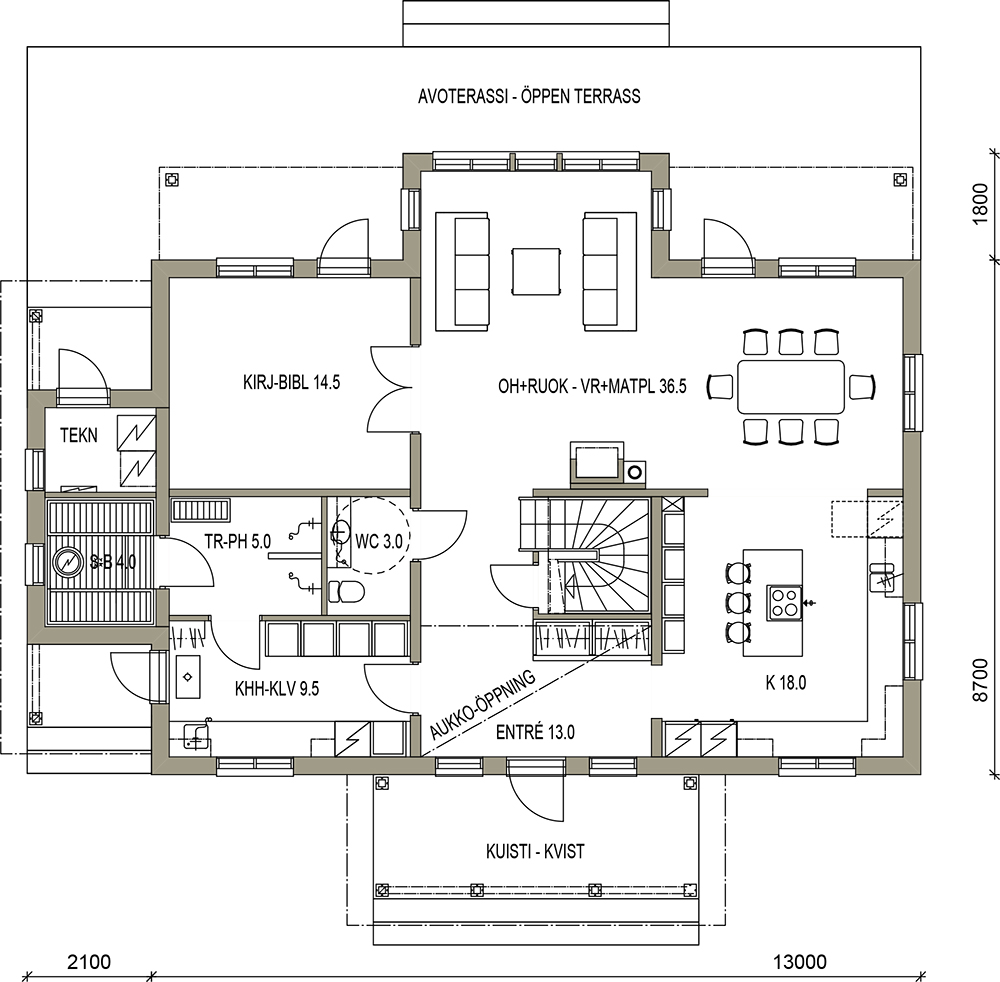
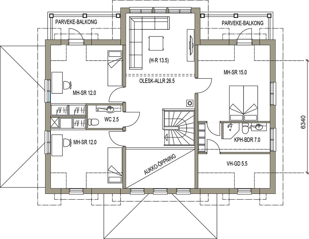
Carolina fås i alla storlekar och med just rätt planlösning för dig. Kom ihåg att vi alltid kan anpassa husets utseende till en planlösning som passar just dig. Det lönar sig alltså att söka även bland andra husmodellers bottenplan!

Planlösning

Ta kontakt

Vill du veta mer om hur vi hanterar personuppgifter? Bekanta dig med våra principer för dataskydd.

  • This field is for validation purposes and should be left unchanged.

Carolina bilder