Victoria 142

Ståtliga och representativa Victoria fungerar både på landsbygden och i staden. Rymliga och moderna Victorias hela väsen andas respekt för traditionerna.

Välj eller skräddarsy din egen Victoria!

Victoria fås i alla storlekar och med just rätt planlösning för dig. Kom ihåg att vi alltid kan anpassa husets utseende till en planlösning som passar just dig. Det lönar sig alltså att söka även bland andra husmodellers bottenplan!

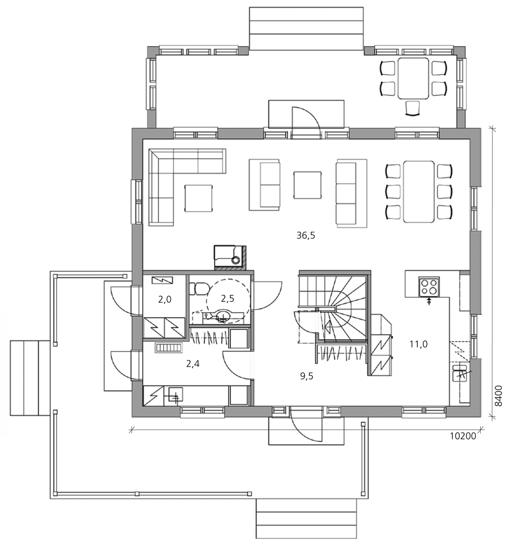
Planlösning

Ta kontakt

Vill du veta mer om hur vi hanterar personuppgifter? Bekanta dig med våra principer för dataskydd.

  • This field is for validation purposes and should be left unchanged.

Victoria bilder