Cubo 170

Cubo modellernas arkitektur representerar ett modernt byggande. Varje Cubo-hem har stora, ljusa gemensamma utrymmen där det är lätt att umgås.

Välj eller skräddarsy din egen Cubo!

Cubo fås i alla storlekar och med just rätt planlösning för dig. Kom ihåg att vi alltid kan anpassa husets utseende till en planlösning som passar just dig. Det lönar sig alltså att söka även bland andra husmodellers bottenplan!

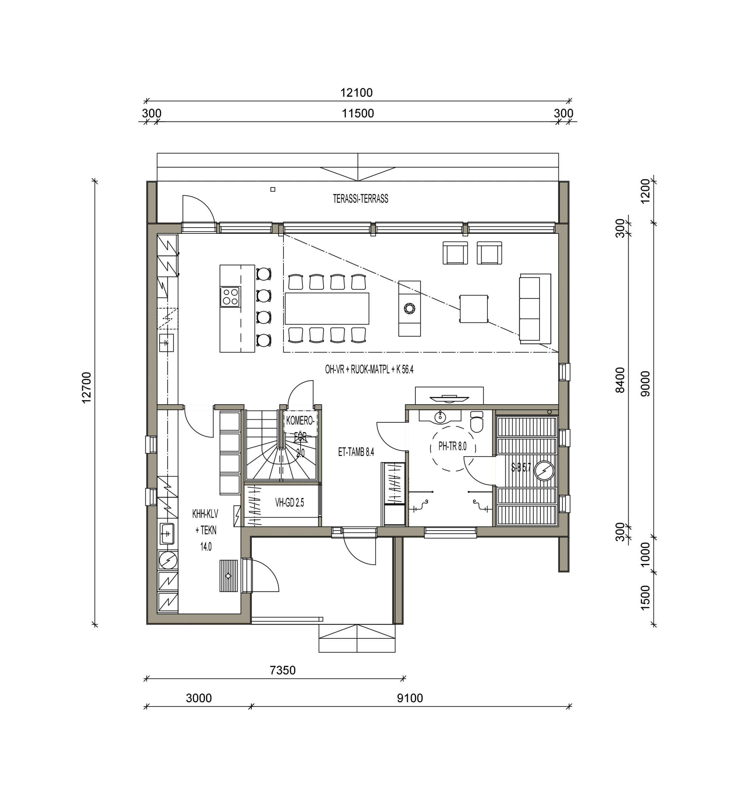
Planlösning

Ta kontakt

Vill du veta mer om hur vi hanterar personuppgifter? Bekanta dig med våra principer för dataskydd.

  • This field is for validation purposes and should be left unchanged.

Cubo bilder