We use cookies to provide a better user experience and personalised service. By consenting to the use of cookies, we can develop an even better service and will be able to provide content that is interesting to you. You are in control of your cookie preferences, and you may change them at any time. Read more about our cookies.
These cookies are technically required for our core website to work properly, e.g. security functions or your cookie consent preferences.
Preference cookies enable a website to remember information that changes the way the website behaves or looks, like your preferred language or the region that you are in.
In order to improve our website going forward, we anonymously collect data for statistical and analytical purposes. With these cookies we can, for instance, monitor the number or duration of visits of specific pages of our website helping us in optimizing user experience.
These cookies help us in measuring and optimizing our marketing efforts.
Enkel och stilren.
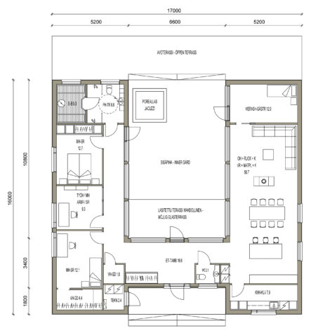
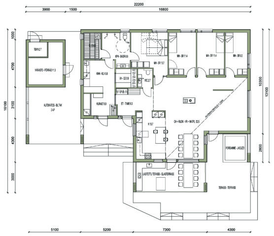
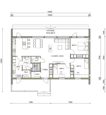
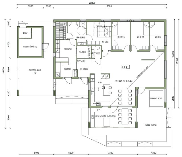
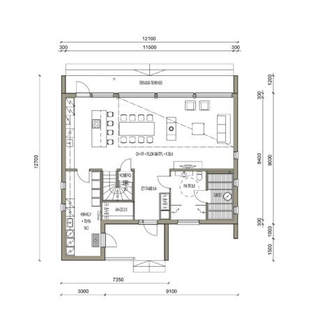
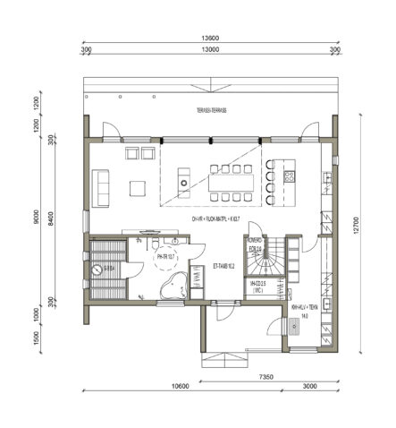
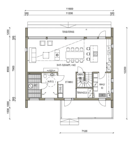
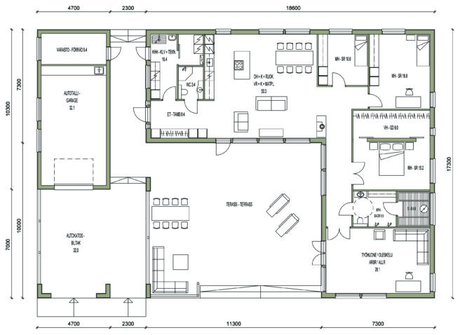
Cubo fås i alla storlekar och med just rätt planlösning för dig. Kom ihåg att vi alltid kan anpassa husets utseende till en planlösning som passar just dig. Det lönar sig alltså att söka även bland andra husmodellers bottenplan!
Se var du kan hitta en representant nära dig för att fråga mera!