Easy 80 standard

80 m2 färdigplanerat hem

Easy passar dem som inte är intresserade av att bestämma allt i minsta detalj. Huspaketet Easy är ett bra alternativ för dem som vill att byggandet ska gå så lätt, snabbt och smidigt som möjligt.

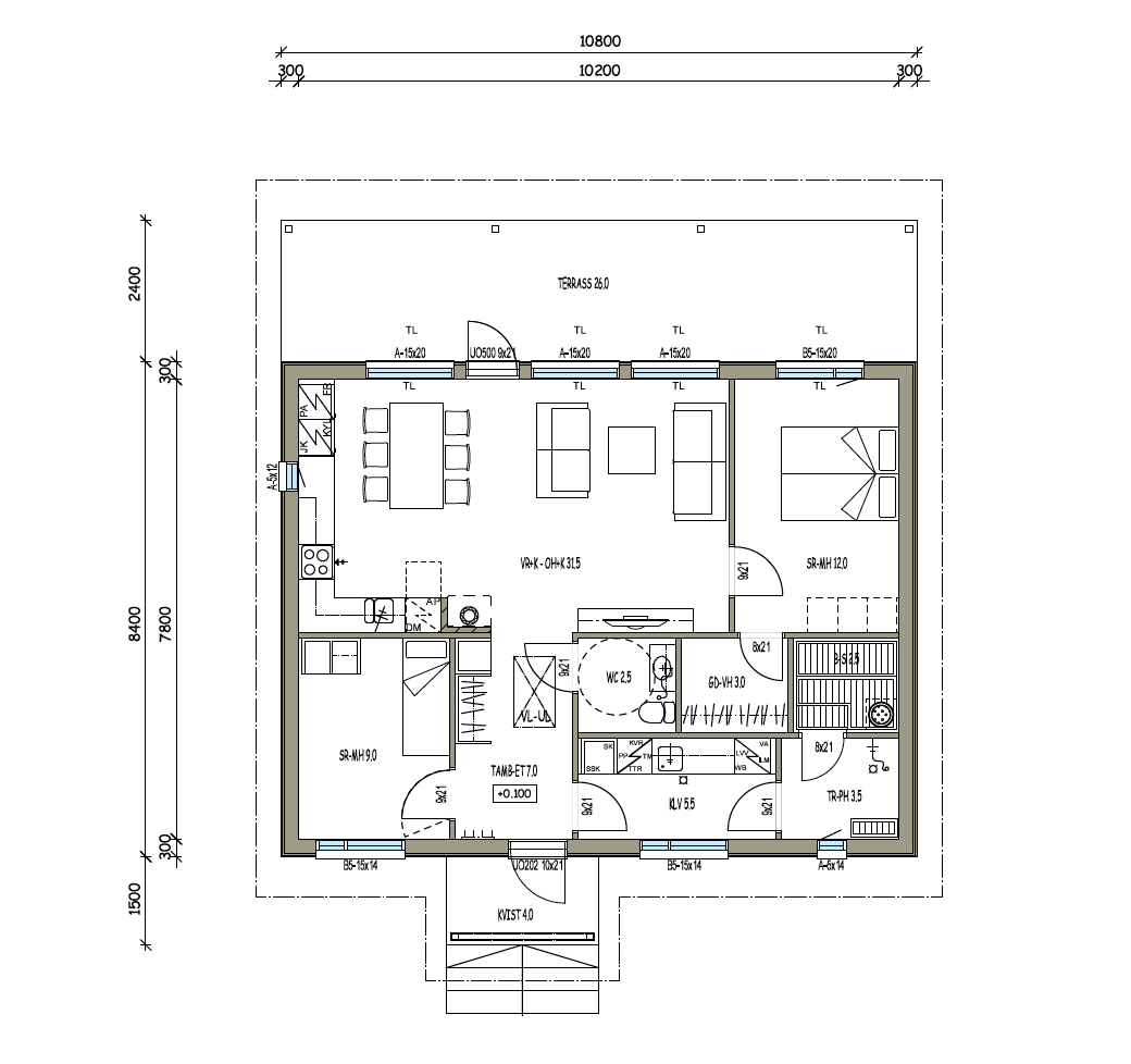
Planlösning

Storlek

  • 3r + kök
  • Bostadsyta 79.5m2

Easy är ett färdigplanerat hem som passar en modern livsstil. Du kan välja mellan tre olika inredningspaket. Föredrar du ett hem i gråa nyanser eller klassiskt vitt? Oavsett färgskala kan du lita på att inredningsmaterialen är välgenomtänkta, för det är en inredningsplanerare som omsorgsfullt har valt ut dem. Vissa val kan du ändå påverka själv för att ge ditt hem en personlig touch. Paketet kan fås närapå inflyttningsklart beroende på område, det är bara kök och övriga skåp i huset som du skaffar själv. Mer specifik information om detta får du av närmaste försäljare.

Precis som alla andra Teri-Hus byggs Easy av noga utvalt material av högsta kvalitet. Vi använder inhemskt material så långt det bara är möjligt och tar hänsyn till både hur miljövänliga och återvinningsbara materialen är. Vi bygger i trä, vilket gör Teri-Hus till ett bra val även ur ett ekologiskt perspektiv.

*Priset beror på område och färdighetsgrad. För pris, ta kontakt med närmaste försäljare.
 

Easy 80 standard - Teri-Hus

KONTAKTA EN HUSREPRESENTANT!

Låter Easy intressant? Mer specifik information får du av närmaste försäljare.

Easy bilder