Easy – enklare kan det inte bli
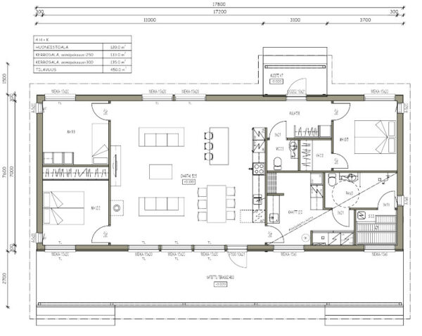
I jakten på en radhusbostad i Vasaregionen insåg Carl-Anton Högkvist och Josefin Österberg att de kunde få ett nytt hus för samma peng. De upptäckte Teri-Hus modell Easy och föll pladask för den moderna och välgenomtänkta helheten med öppen planlösning. Julen 2019 hoppas de kunna fira i sitt nya hem.
I augusti 2019 är Carl-Anton Högkvist och Josefin Österberg mitt i byggprocessen. De målar sitt hus på utsidan och byggarna har flyttat in för att färdigställa huset invändigt. Carl-Anton och Josefin har beställt ett närmast nyckelfärdigt hus av Teri-Hus modell Easy 120 Standard med 4 rum och kök. Paret har valt att själva måla huset och bygga garaget, resten sköter Teri-Hus.
-Vi hade inte tänkt bygga alls, men om vi gör det så ska det kännas roligt. Vi vill njuta av byggtiden, inte stressa igenom den. I somras hade jag mitt livs första semester och jag var på bygget varje dag. Det är ju intressant att följa med vad som händer och se hur proffsen jobbar, säger Carl-Anton.

Han jobbar som ingenjör och sambon Josefin som lärare inom småbarnspedagogik. Paret träffades under studietiden i Vasa och har båda hunnit arbeta några år. Vårvintern 2018 tröttnade de på hyreslägenheten och började söka något eget. I det skedet hade de ännu ingen tanke på att låta bygga ett nytt hus.
-Vi kände oss inte redo att bygga hus utan ville bara hitta något som vi kunde flytta in i direkt, säger Carl-Anton.
Nytt hem 200 meter borT
Paret började söka en radhus- eller parhusbostad med 3-4 rum, där familjen också skulle ha rum att växa. I samma veva råkade de se annonsen om husmodellen Easy 120 Standard. De gillade den öppna, ljusa planlösningen med stora fönster åt båda hållen.

Paret började söka en radhus- eller parhusbostad med 3-4 rum, där familjen också skulle ha rum att växa. I samma veva råkade de se annonsen om husmodellen Easy 120 Standard. De gillade den öppna, ljusa planlösningen med stora fönster åt båda hållen.
-Vi räknade och insåg att vi skulle få ett nytt, större hus för samma peng som det skulle kosta att köpa en radhuslägenhet. Tanken på ett nytt hem i vår stil kändes betydligt mera lockande. Dessutom skulle vi inte behöva ha grannarna så nära inpå, säger Josefin.
När Carl-Anton och Josefin väl hade bestämt sig för husmodell blev nästa projekt att hitta tomt. Den biten gick smidigt eftersom paret redan hade spanat in två lediga tomter på gränsen till Korsholm, bara 200 meter från deras nuvarande hem i Vasa.
-De lediga tomterna krävde ganska omfattande markarbete, det var väl därför ingen hade vågat satsa på dem. Men vi gjorde det och Teri-Hus konstaterade att den husmodell som vi valt var som gjord för just den där tomten, säger Carl-Anton.
Inredningsplaneraren träffade mitt i prick
I april hölls ett möte med Teri-Hus där de gick igenom ritningar och materialval. Då fick paret också klarhet i vad allt som ingår i det nyckelfärdiga paketet. Samtidigt fick de välja mellan det gråa eller vita inredningspaketet, med material som valts ut av en inredningsplanerare.
Vi valde det gråa paketet förutom i badrummet där vi valde vita nyanser. I samband med mötet fick vi titta och känna på materialen och vi var nöjda med de material som ingick i grundkonceptet. Inredningspaketet kändes precis som vår stil, säger Josefin.

Kring påsk ansökte paret om bygglov. Teri-Hus var delaktig i processen redan från början och hjälpte till med pappersarbetet. Tomten fylldes upp och jämnades ut i maj och i juni beviljades bygglovet. Efter det gick allting väldigt snabbt. I slutet av juni gjöts husgrunden och sedan golvet inne i huset.
-I början hade jag kontakt med Teri-Hus nästan dagligen. Vi har två kontaktpersoner, och av dem har vi fått bra stöd hela vägen. Vi har också fått tips om sådant som vi själva kanske inte skulle ha tänkt på. Vi fick till exempel rådet att odla gräs på bakgården innan huset skulle levereras, eftersom det inte går att komma dit med grävmaskin efteråt.
Carl-Anton och Josefin sådde gräsfrön den 15 juli och dagen efter kom deras hus. Efter bara ett par dagar var väggar och tak på plats, och då kunde allt lösmaterial placeras inne i huset. När utsidan var klar blev det paus i bygget, eftersom golvplattan behövde få torka i tre veckor. I september fortsätter byggarna på insidan, och Carl-Anton och Josefin tar itu med garaget.

Teri-Hus ett självklart val
Carl-Anton är uppvuxen i Terjärv och har alltid haft ett gott öga till hustillverkaren i hemknutarna. Han känner många som bor i Teri-Hus och som har varit nöjda med den goda kvaliteten.
När vi väl bestämt oss för att bygga nytt kändes det som en självklarhet att välja Teri-Hus. Då vet vi att vi får ett bra hus av hög kvalitet som håller i många år framöver. Dessutom kan vi vara säkra på att vi alltid får betjäning på svenska, säger Carl-Anton.

Hitta inspiration
Varför Teri-Hus?
Vill du ha tilläggsuppgifter eller en offert?
Se var du kan hitta en representant nära dig för att fråga mera!



