Unique house: Modernt trähus i storstadsregionen
Några ramvillkor gavs för det nya hemmet: I planeringen skulle solljusets fall över tomten beaktas och utnyttjas till max. Dessutom skulle rummen erbjuda flexibilitet i familjens vardag. Till en början önskade sig familjen ett enplanshus i trä med modern arkitektur. Alla önskemål förverkligades ändå inte riktigt till slut, eftersom den valda tomten satte sina egna begränsningar för bygget.
En av de största utmaningarna med att bygga hus i huvudstadsregionen är att hitta en passande tomt. Det märkte Liisa och Hannu också när de började söka en lämplig plats för familjens nya hem. Till slut hittade de en gammal och stor trädgårdstomt intill goda trafikförbindelser, som styckades till två separata tomter.
– Tomtstyckningen och bygglovsprocessen försenade byggstarten med över sex månader. Vid köpögonblicket stod ett gammalt hus på platsen som vi rev direkt. Vi blev också tvungna att spränga en hel del berg på tomten, säger Hannu när han berättar om projektet.
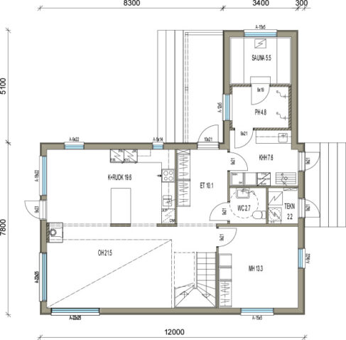
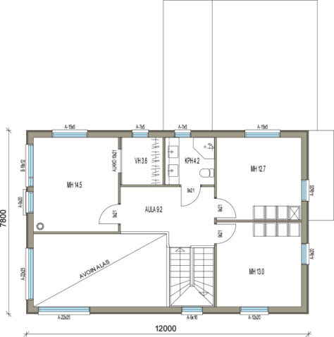
På den styckade 750 kvadratmeter stora tomten fanns en byggrätt på 192 kvadratmeter för Liisa och Hannus hem. På grund av tomtens storlek och form var det omöjligt att bygga ett enplanshus där. Eftersom familjen ville utnyttja alla tillåtna kvadratmetrar beslöt de sig för att bygga huset i två plan.
Trähus med arkitektonisk prägel som modell
När paret började söka idéer för sitt nya hem utgick de från att huset skulle ha ett modernt formspråk och vara byggt i trä. Efter mycket bläddrande hittade de Teri-Hus och den lokala försäljaren Guy Kullman lyckades till slut övertyga paret. En avgörande faktor var att husfabriken klarade att leverera individuellt planerade träelement helt enligt kundens önskemål.
Den långsmala tomten förutsatte att huset placerades i nordost-sydvästlig riktning. Eftersom familjen ville få in så mycket naturligt ljus som möjligt i hemmet valde de att ha vardagsrum och övriga gemensamma utrymmen på nedre våningen i just sydvästlig riktning med fönster mot den främre delen av trädgården. I övre våningen, med färre kvadratmetrar än nedre våningen, placerades familjemedlemmarnas sovrum.
Med enkla lösningar på utsidan av tvåplanhuset lyckades man skapa en fasad i den önskade moderna stilen. Takformen är ett brutet sadeltak med ett ganska kort takutsprång. Panelen på ytterväggarna är bredare än normalt och har genomgående monterats liggande. Det är ovanligt i Finland där man oftast använder stående panel utvändigt, åtminstone delvis.
Den vita färgen på utsidan har kompletterats med detaljer i grafitgrå nyans: tak, takfot, rännor och fönsterplåtar. Fönstren med fast karm är enkla till sitt utseende och har lämnats så smala som möjligt. Den moderna stilen fullbordas av terrassen med glasräcke som byggts framför huset. Terrassen döljer dessutom hussockelns höjd vilket gör att huset ser mer proportionerligt ut.

Inredningslösningar framhäver stilen
Huset beställdes i form av ett väderskyddat huspaket från Teri-Hus. Familjen konkurrensutsatte, valde och anlitade sedan de övriga entreprenörer som behövdes för att få huset färdigt.
– Vår försäljare hjälpte oss hitta passande entreprenörer för projektet. Det var faktiskt en av de svåraste uppgifterna, säger Hannu.
Invändigt följer huset tydliga linjer. Fönsteröppningarna är stora och i vardagsrummet breder de till och med ut sig över båda våningarna. Trots det känns utrymmena inte avslöjande, för huset är välgenomtänkt i sin arkitektur och dess placering på tomten har planerats med omsorg och eftertanke.
Tomten i fråga ligger i en liten sänka, och grannhuset närmast vardagsrummet står i sluttningen bredvid. Den tomten böjer sig en aning inåt och skapar därmed ett skyddat hörn mot vägen. Det var dessutom möjligt att placera huset så långt bak på tomten att det framför huset lämnade rejält med utrymme för en carport för två bilar, ett varmförråd, en terrass och en liten trädgård. Det finns också en nackdel med det rikliga solljuset, det blir snabbt för varmt i rummen.
– För att minska solens värmestrålning in i huset monterades fönstren med solskyddsfilm redan från början. Dessutom har vi persienner i fönstren som går att fälla ner, säger Hannu.
Ljuddämpningen fungerar bra i huset. Det ekar inte trots att utrymmena är öppna, speciellt i vardagsrummet där det är hela sex meter från golv till tak. Interiören är av hög arkitektonisk kvalitet, intill rummet med svindlande takhöjd finns ett markant lägre utrymme för köket där man lyckats få till en intim känsla. Huset byggdes så omsorgsfullt att det varken behövdes tak- eller fönsterlister.

– Det var viktigt för oss att hitta rätt stil och färg i inredningen. Vi var noga med golvmaterialen, den fasta inredningen i kök och skåp för förvaring, ljudanläggningen och trappan med sin paradplats i vardagsrummet. Vi ville inte att helheten skulle bli för vit, men önskade ändå att den skulle vara både ljus och luftig.
Av allt som skulle skaffas till huset visade det sig vara allra svårast att hitta passande belysning, både inne och ute. Ett krav var att lamporna skulle vara små men effektiva. Ljuskällorna skulle inte heller stjäla för mycket uppmärksamhet. Via nätet hittade familjen till slut rätt. Som allmänljus i hemmet installerades dold LED-belysning längs väggytorna. De mer synliga taklamporna som beställdes till vardagsrummet har ännu inte monterats, för det jobbet kräver en väldigt hög stege eller en byggnadsställning.
– Vi har redan bott två år i vårt hem nu. Allt är klart, det har det varit redan länge. Målet var nämligen att flytta in i ett helt färdigt hem. Förrådsbyggnaden med carport blev klar på sommaren samma år som vi flyttade in och följande sommar planerade vi och byggde trädgården.
Den här familjen har insett det viktigaste: att bygga ett hem är alltid en så pass stor investering, att det är värt att satsa på att verkligen göra huset till sitt eget redan från början. Det gäller både uppbyggnad, stil och inredning. Det må vara lite mera tidskrävande att bygga ett personligt hem, men slutresultatet är just det hus som man drömt om.
Artikeln publicerades i Talo Extra nummer 2/18

Hitta inspiration
Varför Teri-Hus?
Vill du ha tilläggsuppgifter eller en offert?
Se var du kan hitta en representant nära dig för att fråga mera!
