Unika hem: Verkviken
Modernt möter klassiskt i Verkviken
Det började med en pappersskiss. Utgående från den ritade Teri-Hus Åsas och Markus drömhem. Huset krävde specialplanerade element men det var inget problem eftersom Teri-Hus tillverkar alla element individuellt för varje hus I snart tio år har familjen stortrivts i sitt ståtliga hem högst uppe på en sluttande tomt i Verkviken, Jakobstad.
Hus planerade Åsa redan som liten. Hon skissade ivrigt i det ruthäfte som hon fått från den lokala banken Deposita och ritade in både hobbyrum och swimming pool. I vuxen ålder såg prioriteringarna lite annorlunda ut. Hon väntade sitt andra barn med sambon Markus då de började söka hus i Österbotten. Tanken var att de tillfälligt skulle mellanlanda i en tvårummare tills de hittat sitt hus. Det skulle ju inte ta länge.

– Vi hittade inget färdigt hus som kändes rätt, så vi blev faktiskt kvar i den där lilla tvåan i närmare två år. När vi flyttade ut hade vi inte bara en utan två söner, säger Markus.
Till en början hade paret inga planer på att låta bygga ett hus, de hade alltid tyckt att själva byggprocessen verkade jobbig. Men så kom en chans att köpa en fin tomt av deras vänner i ett bostadsområde nära Åsas barndomshem.

– Flera som vi kände höll på att bygga hus i samma kvarter så det kändes som ett trevligt område att satsa på. När vi väl hade bestämt oss för att bygga nytt så visste jag att jag ville rita huset själv, säger Åsa.
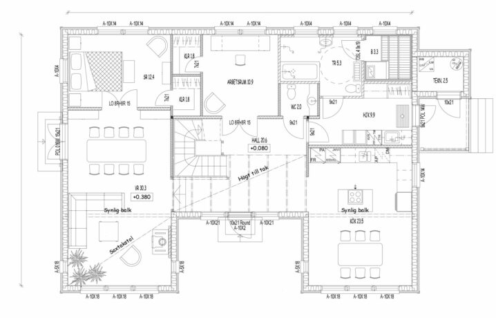
Hon ritade ett trähus i två plan med en totalyta på 194,5 kvadratmeter. Åsa visar den ursprungliga skissen på bottenplan som paret sedan lät en arkitekt titta på och kommentera.
– Jag är glad att vi anlitade en arkitekt för han kom med flera goda idéer, bland annat för entrén och hallen. Han flyttade trappan så att golvytan på första våningen formades som en åtta. Det är en bra lösning som vi har varit nöjda med, säger Åsa.

Bra service och flexibilitet avgjorde
Paret frågade offerter från flera hustillverkare men valde Teri-Hus. Valet berodde främst på det vänliga och personliga bemötande som de fick av försäljaren och den flexibilitet som hustillverkaren erbjöd. Åsas ritning krävde vissa speciallösningar men det var aldrig något problem.
– Jag surfade mycket på svenska hustillverkares sidor och gillade speciellt de svenska husmodellerna med kort takutsprång och fönstersmyg. En del av de lokala hustillverkarna som vi frågade offert från var skeptiska till den här typen av tak och fönster men Teri-Hus kunde fixa det, säger Åsa.

Teri-Hus gjorde slutritningarna och levererade elementen under midsommarveckan år 2009. Paret anlitade sedan det lokala byggföretaget Jake Rakennus Bygg för att färdigställa huset, ett samarbete som också fungerade utmärkt. I februari 2010 fick de äntligen flytta in och samma år gifte de sig.
– Jag minns inte att byggprocessen som någon jobbig tid, det gick faktiskt riktigt smidigt trots att vi hade små barn. Jag är fullständigt ointresserad av inredning så i praktiken gick det till så att Åsa gav förslag och jag svarade ja. Så brukar det gå till i vårt äktenskap och det fungerar bra, säger Markus och skrattar.

Vad gör ett hus till ett hem?
Den som stiger in i huset genom entrédörren kan genast se genom huset, åt båda hållen. Raka siktlinjer är något som Åsa varit noga med i planeringen. Hon ville också ha kök och vardagsrum åtskilda, och placera vardagsrummet så att eftermiddags- och kvällssolen kikar in. Hemmet skulle vara tidlöst och klassiskt, men ändå kännas modernt med både rymd och ljus.

– Det är viktigt för mig att huset verkligen känns som ett hem, inte som något opersonligt visningshus på en bostadsmässa. Ett hem ska vara en inbjudande plats där man gärna vill slå sig ner och umgås. Det är en utmaning att få in den där värmen i ett nytt hus, det har jag satt mycket tid på.
Åsa har verkligen lyckats få till den där känslan, trots att mycket i huset är vitt och stilrent. Kanske är det tavlorna som gör det. Affischer, konstverk och fotografier som väcker besökarens nyfikenhet. Eller så är det detaljerna, Åsa har en svaghet för danska designmöbler och lampor. Färggranna textilier bryter också det vita på ett intressant sätt. Och så höjer ju boksamlingen trivselfaktorn rejält.

– Alla innerväggar har samma vita nyans. Det bara blev så, vi hade väl inte tid att fundera så mycket på färger i den livssituation vi befann oss i då vi byggde. Men vi har varit nöjda med vitt, det går att skapa variation med textilier. Jag är en riktigt kuddfantast, säger Åsa.

20 procent av ett hem får vara fult
Inspiration hittar Åsa oftast i inredningstidningar, som hon njuter av att bläddra i en fredagkväll med en påse lösgodis. Det var i en sådan artikel som hon en gång läste att 20 procent av ett hem får vara fult. Det där citatet har blivit ett motto i hennes inredningsarbete och det fungerar också utmärkt som tröst ifall hon känner sig uppgiven med något rum.
– För att få till en personlig prägel på ett hem så måste det få vara lite stökigt och fult. Jag matchar gärna det snygga med något som skaver lite. Ett hem får inte vara för perfekt och stylat in i minsta detalj, då blir det fullständigt ointressant, säger Åsa.


Hitta inspiration
Varför Teri-Hus?
Vill du ha tilläggsuppgifter eller en offert?
Se var du kan hitta en representant nära dig för att fråga mera!
