Matilda 225

Med sitt mansardtak och inspiration av gamla herrgårdar och villor är Matilda en klassiker bland Teri-Hus. Matilda är ett rymligt och praktiskt hus som andas frid och värdighet, samtidigt som det utstrålar romantik och en rejäl dos traditionell hemtrevnad.

Välj eller skräddarsy din egen Matilda!

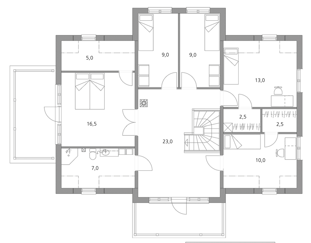
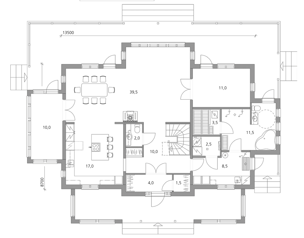
Matilda fås i alla storlekar och med just rätt planlösning för dig. Kom ihåg att vi alltid kan anpassa husets utseende till en planlösning som passar just dig. Det lönar sig alltså att söka även bland andra husmodellers bottenplan!

Planlösning

Ta kontakt

Vill du veta mer om hur vi hanterar personuppgifter? Bekanta dig med våra principer för dataskydd.

  • This field is for validation purposes and should be left unchanged.

Matilda bilder