Unika hem: Drömvillan vid havet
Idag fungerar sommarstugan vid havet som familjens andra hem. Familjen trivs så bra här att de överväger att göra huset till sitt riktiga hem i framtiden.
Tomten hade de redan haft länge, men byggandet blev inte av på grund av ett arbetsuppdrag utomlands. När familjen återvände till Finland beslöt de att förverkliga sitt byggprojekt.
– På tomten fanns en gammal sommarstuga, men den var i så dåligt skick att vi tyckte det var bäst att riva den och bygga ett nytt hus, säger Susanna som är mamma i familjen.
De fick höra om Teri-Hus via familjebekanta som just hade slutfört sitt byggprojekt med företaget. De berättade att deras husbygget hade gått smidigt från början till slut och rekommenderade Teri-Hus även för sina vänner. På basen av vännernas goda erfarenheter valde familjen att anlita Teri-Hus som husleverantör.

Familjen ville beställa huset så färdigt som möjligt. Teri-Hus levererade stommen och Kalle Gummerus lokala byggare färdigställde sedan huset tills det var inflyttningsklart. Familjen visste att Kalle Gummerus hade ett pålitligt gäng eftersom deras vänner också hade anlitat dem.
– Det här är tryggt sätt att bygga på. Ifall det skulle dyka upp något i ett senare skede eller vi behöver hjälp med att bygga något, så kan vi ringa och rådfråga Kalle.
INSPIRATION FRÅN SVENSK STRANDVILLA
Inspiration till husmodell hittade familjen genom att surfa runt på olika husleverantörers webbplatser. De finaste modellerna hittade familjen bland strandvillorna hos ett svensk leverantör. Utgående från de bilderna började familjen forma sina egna önskemål. Planerna förtydligades med hjälp av Teri-Hus och småningom hittade huset sin slutliga form.
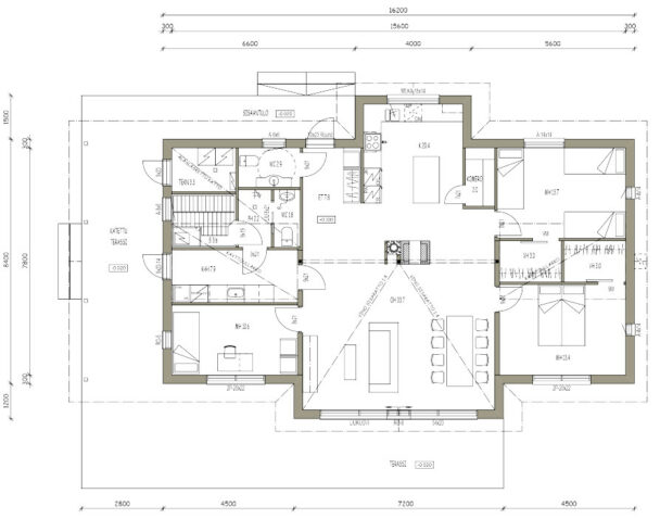
– Vi föll för en planlösning där rummet i mitten är stort och öppet, med köket i bortre änden. På ena sidan om det stora vardagsrummet finns sovrummen och på andra sidan finns gästrum och badrum.

På andra sidan om det öppna vardagsrummet finns ett avskilt gästrum.
Byggnaden är planerad utgående från tomten och den vackra omgivningen. Familjen ville naturligtvis ta vara på den fantastiska havsutsikten men samtidigt placera huset klokt med tanke på insyn från grannarna. Därför bestämde de sig för stora fönster ut mot havet och förhållandevis små sidofönster.

Valet föll på en husmodell som maximerade havsutsikten. I mitten av huset finns ett öppet utrymme med glasdörrar ut till terrassen där familjen gärna samlas och umgås.
Den korsformade husmodellen med sadeltak är en smart lösning här. Huset har en rektangulär form med långa burspråk åt båda hållen. Det ena burspråket mot bakgården rymmer köket, det andra burspråket mot havet maximerar rymden i vardagsrummet. Innertaket i rummet följer nämligen sadeltakets form och ger en högsta rumshöjd på hela fyra meter.

I vardagsrummet utnyttjas innertakets form för att öka takhöjden. I bortre delen av rummet är taket lägre, köket finns bakom murspisen.
![]()
Familjen hittade sin köksinredning i Petra-köks kollektion. De ville ha det lika bekvämt här som hemma och valde därför ett fullt utrustat kök.![]()
En av Susannas drömmar förverkligades då hon fick ett skafferi i sitt kök. Där finns mycket förvaringsutrymme, även för köksprylar som används mera sällan.
Förutom att burspråken ger flera kvadratmetrar inomhus, skyddar de också mot insyn utomhus. På ena sidan förlängdes takkonstruktionen utanför husstommen för att skapa en takförsedd uteplats där det också går att grilla i regnigt väder.
Beach house-stilen har familjen lyckats få till med små, men mycket viktiga detaljer. Några exempel är de enskilda runda fönstren i varje väderstreck och terrassdäcket som byggts runt så gott som hela huset.
SATSADE PÅ ÅRETRUNTBOENDE
Redan från första början var det klart att fritidshuset skulle komma användas året runt, och eventuellt bli familjens riktiga hem i framtiden. Det togs i beaktande i planeringen, även när det gällde stomisolering och uppvärmning. Den huvudsakliga värmekällan är en luftvärmepump, snabb tilläggsvärme fås via murspisen mitt i huset.
– Det är främst vintertid vi eldar i spisen. Bergvärme skulle ha varit en överdimensionerad lösning för uppvärmning här hos oss. I framtiden installerar vi kanske solpaneler på taket.
Det korta avståndet mellan hemmet och fritidshuset gör att familjen gärna vistas där även på vardagarna. En av deras viktigaste önskemål var att huset skulle vara praktiskt och lättskött.
– Vi var noga med att bygga tillräckligt med förvaringsutrymme, och inte ta hit saker i onödan. Det ska vara enkelt att städa innan vi åker tillbaka till stan, för då är det alltid skönt att komma tillbaka.

Genom att skippa alla onödiga grejer i huset håller familjen det lättstädat. När det gäller möbler och textilier satsar de på tidlös kvalitet.
Den avslappnade stämningen ger det här huset sin charm. Dessutom bjuder det på alla bekvämligheter, till och med bastu inomhus.
– Först tänkte vi bygga strandbastu, men vi skippade den idén av praktiska orsaker. Vintertid är det nog trevligare att värma en bastu i anslutning till huset. Tvättmaskin är det enda som saknas här, tvätten sköter vi hemma i stan.
![]()
Grovkök med utgång till terrassen.![]()
Innebastu och praktiska duschmöjligheter i stugan är speciellt värdefullt vintertid. Handdukstorken är effektiv och torkar snabbt fukten ur textilierna. Handduken kommer från Langøs kollektion.
Den här våren har familjens band till sitt andra hem blivit allt starkare, de tillbringade mycket av undantagstiden här. Ute vid villan kunde de enkelt undvika onödiga kontakter men ändå hade de alltid den service de behövde nära till hands.
– När barnen blir större kan det nog hända att vi flyttar hit, för det är inte långt till stan. Oavsett kommer vi nog att spendera allt mer tid här framöver.
![]()
Alla textilier i huset kommer från Langø home. Produkterna tillverkade av slitstarka och tidlösa material som bomull och linne. Den avslappnade men ändå färgrika stilen passar utmärkt i den här miljön.![]()
Artikel och bilder: Talo Extra
(text: Jutta Rissanen, foto: Paula Osenius)

Hitta inspiration
Varför Teri-Hus?
Vill du ha tilläggsuppgifter eller en offert?
Se var du kan hitta en representant nära dig för att fråga mera!








