Unika hem: Luikkakatu
Det har gått 25 år sedan Antti och Pirkko byggde sitt första hus. Den hektiska småbarnstiden är förbi och numera rullar livet på i en lugnare takt. När de fick mer tid för att skapa ordning och reda i livet föddes tanken om ett nytt hem. Det var en dröm som de insåg att faktiskt kunde förverkligas. Nu var det dags att byta det stora huset i två plan med sju rum och mansardtak till ett mindre hus i modern stil, tillverkat av miljövänliga material.
Fullträff på andra försöket!
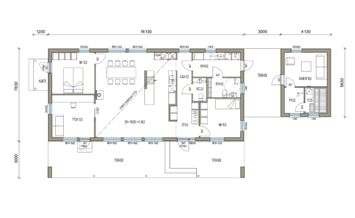
Det vita huset står på en hög hörntomt, med utsikt över det lugna bostadsområdet i Ylivieska. Inne i huset ger de stora fönsterpartierna ett vackert ljus och skapar rymd. Redan i hallen möts gästerna av ett fönster mot baksidan.
“Fönstret är som en tavla som förändras varje årstid och som välkomnar den som kommer in genom dörren. I vårt tidigare hus möttes gästerna av toalettdörren” säger Pirkko och skrattar.

Pirkkos öga för inredning och förmåga att skapa hemtrevnad genomsyrar hela hemmet. I arbetsrummet hänger en vacker väggbonad som ger värme och mjukhet till rummet med stora fönsterpartier.
“Väggbonaden är faktiskt en tung ullmatta, som kräver en specialgjord upphängningsanordning för att hållas på väggen”, säger Pirkko.


Kök, matplats och vardagsrum finns i samma stora utrymme. En planlösning som paret Autio först var osäkra på om de skulle gilla, trots att många hus byggs så idag. Efter att ha bott i huset i några månader har de ändå insett fördelarna med att låta ett rum bli den naturliga samlingspunkten. Här finns plats för många gäster, till exempel barnen med sina familjer.


“När Teri-Hus ordnade husvisning här var det flera besökare som var i samma situation som oss. Barnen har flyttat hemifrån och livet har gått in i ett nytt skede. De berättade att de skulle kunna tänka sig att bygga hus, men inte så här stort. När de sedan fick höra att huset endast är 108 kvadratmeter stort så blev de väldigt förvånade”, berättar Antti.
Det var Antti som önskade att huset skulle ha en fristående del med bastu och bastukammare. Braskaminen i bastukammaren sprider härlig stämning, men den har också en praktisk funktion eftersom den vedeldade bastuugnen värms från bastukammaren. Det har visat sig vara en bra lösning, dels eftersom det finns mer utrymme för att tända eld men också för att träskräpet är lättare att sopa bort i ett torrt utrymme. Tack vare det är det betydligt enklare att hålla rent i bastun.


När paret Autio började planera sitt husprojekt övervägde de flera husleverantörer. Till slut valde de Teri-Hus och det valet har de inte ångrat. Paret Autio hade tagit fram ritningar på ett unikt hem, och Teri-Hus var den husfabrik som kunde anpassa sig till deras husplaner på bästa sätt. Paret Autio ställde också höga krav på materialval och ville bygga ett ekologiskt hus. Teri-Hus visade sig ha de bästa lösningarna för detta.
“Dessutom berättade de lokala montörerna att om de får välja så monterar de helst Teri-Hus. Det tyckte vi var ett tydligt tecken på kvalitet” minns Antti.


Hitta inspiration
Varför Teri-Hus?
Vill du ha tilläggsuppgifter eller en offert?
Se var du kan hitta en representant nära dig för att fråga mera!
