Stiligt svart i S:t Karins
Det stiliga svarta trähuset av modellen Cubo Atrium färdigställdes i slutet av år 2020 i St:Karins, Egentliga Finland. Jenna, hennes man och deras tre barn fick flytta in i sitt nya hem lagom till jul. Deras historia börjar egentligen i köket. Familjen planerade en köksrenovering i sitt gamla hem men insåg att deras renoveringsplaner bara växer. Därför började de överväga att bygga ett helt nytt hem i stället.
Familjen hittade en ledig tomt i sina egna hemknutar, men det tog ändå några år innan de var redo att förverkliga sina planer. När de väl kom igång gick det undan. Utgående från planbestämmelserna började de fundera på en passande husmodell som skulle uppfylla familjens behov och önskemål. De ville ha en speciell planlösning och sökte inspiration på Pinterest. Till en början tänkte de sig ett L-format hus, men när de såg Teri-Hus U-formade husmodell Cubo Atrium så behövde de inte söka längre.
Jenna och hennes man ville ha ett inflyttningsklart huspaket, paret var redan från början överens om att det här var det bästa alternativet för dem. Eftersom Teri-Hus inte säljer helt inflyttningsklara huspaket, ordnade Teri-Hus representant i Åbo så att det inflyttningsklara Cubo Atrium-huset i stället levererades av en samarbetspartner. Huset är ändå byggt med element tillverkade av Teri-Hus. Hela processen gick oerhört smidigt. Paret uppskattar all hjälp och är nöjda med det stöd som de fick under resans gång.

Byggprocessen
För den som bygger hus för första gången kan det vara svårt att greppa helheten. Det är inte säkert att någon blir klokare av att läsa på nätet eller diskutera med andra heller, eftersom alla bär på olika erfarenheter och tenderar att grunda sina åsikter på dem. Det är en utmaning att hitta relevant information.
– Under byggprocessens gång fick vi mycket stöd och hjälp av Teri-Hus representant. Han föreslog till exempel att vi skulle välja solskyddsglas och hade bra argument så att vi förstod varför det var värt att satsa på, säger Jenna.
Tomten
Eftersom tomten redan var klar, utgick planeringen av husprojektet från den. När paret hade bekantat sig med planbestämmelserna inleddes jakten på en passande och snygg husmodell. När de väl hittade Teri-Hus U-formade modell Cubo Atrium var det direkt givet hur den skulle placeras på tomten. Paret ville nämligen ha sin trädgård i anslutning till skogen.
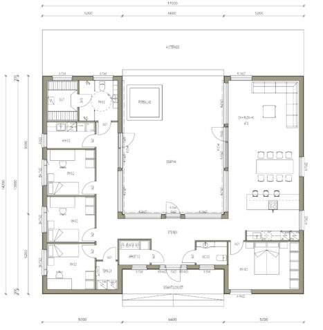
Planlösning
Teri-Hus är en flexibel husleverantör. Det betyder att det finns så gott som obegränsade möjligheter att omarbeta även färdiga husmodeller enligt kundernas behov och önskemål. Huset i St: Karins är 20 kvadratmeter mindre än den ursprungsmodellen, och förminskningen var bara en av många ändringar som Jenna och hennes man valde att göra. De printade ut den ursprungliga planlösningen och märkte ut alla ändringar som de ville ha. Utgående från deras plan utarbetade Teri-Hus ett förslag, som ännu justerades ett par gånger. Paret fick en mycket positiv bild av Teri-Hus, just på grund av företagets flexibilitet.
– Även om allt har gått bra, så skulle det nog ha varit smart att anlita en arkitekt i projektets inledningsskede. Han eller hon kunde ha tagit väderstrecken i beaktande och sett till att alla önskemål verkligen blir uppfyllda i det nya hemmet. Om jag skulle börja om på nytt så skulle jag satsa på det.

Budget
– Budgeten sätter ramarna för hela husprojektet, men för den som bygger hus för första gången är det svårt att förstå vad husprojektet kommer att kosta i sin helhet. Nybörjare har inte en aning om vilka kostnader som kommer emot innan något konkret ens börjar hända på tomten. Den här biten hoppas jag kommer att diskuteras mera i fortsättningen.
I samarbetet med Teri-Hus var kostnaderna tydliga och husleverantören kunde hjälpa och förklara vad saker kostar och vad som kostar extra. Huset restes med entreprenadavtal, vilket betyder att det från början är klart vad arbetet kommer att kosta. Eventuella tilläggskostnader betalas sedan separat.
Läs mer om budgeten och huspaketets pris
Detaljerna gör helheten
– Mitt råd är att vara uppmärksam, även på små saker. Det är trots allt detaljerna som gör helheten. Kontrollera alla bilder, så att du säkert får rätt färg på exempelvis karmar. Det lönar sig att låta den här granskningen ta sin tid.
I det här Cubo Atrium-hemmet ville paret hålla sig till svart, både när det gällde karmar, fönster och annat. Teri-Hus skötte sin del av arbetet bra och allt är som det ska vara. Jenna och hennes man är mycket nöjda med den service de fick. I planeringsskedet höll de kontakt med Teri-Hus planerare både via e-post och telefon. Husplaneraren tog sig tid att fixa ändringar direkt vid sidan om annat arbete och senast dagen därpå fick paret uppdaterade bilder att ta ställning till.
– Husleveransen var det moment som orsakade mest stress för oss. Det kändes genast lättare då vi helt konkret kunde se hur byggprojektet framskred på tomten, säger Jenna.

Hitta inspiration
Varför Teri-Hus?
Vill du ha tilläggsuppgifter eller en offert?
Se var du kan hitta en representant nära dig för att fråga mera!


